Siemianowice Śląskie, Przełajka, Storczykowa

Dom na sprzedaż

Opis nieruchomości

Piękny nowoczesny dom w zabudowie bliźniaczej z ogrodem i garażem przy polu golfowym i bażantarni w Siemianowicach Śląskich ul. Storczykowa.

KUPUJĄCY NIE PŁACI PROWIZJI I PODATKU PCC!!!

Prezentowana oferta to wygodny, nowoczesny bliźniak w inwestycji deweloperskiej „Osiedle Spacerowe” w Siemianowicach Śląskich.  Dom o powierzchni 136,36 m2 z ogrodem usytuowany na kameralnym osiedlu domów  w luźnej zabudowie wolnostojącej, bliźniaczej i szeregowej.
Dostępne budynki mają duże ogródki i są bardzo dobrze doświetlone. 

Domy są gotowe do sprzedaży

Dostępne są 3 segmenty B5, B6, B7 w cenie 750.000 zł brutto

Niezwykle atrakcyjne architektonicznie osiedle zostało zaprojektowane z troską o zapewnienie przyszłym mieszkańcom komfortu użytkowania. Mieszkalna część bryły nie ma bezpośredniego połączenia z sąsiednim budynkiem, pomiędzy nimi jest garaż i podjazd.

Inwestor to renomowany deweloper gwarantujący najwyższe standardy jakości materiałów oraz wykonawstwa.
Budynek w stanie surowym zamkniętym, istnieje możliwość kontynuacji inwestycji do stanu deweloperskiego a także "pod klucz".

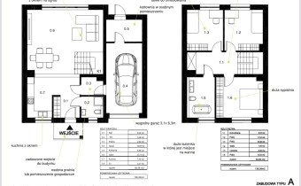
Rozkład pomieszczeń

Na parterze o łącznej powierzchni użytkowej 83,56 m
2 znajduje się w części mieszkalnej: przedpokój z miejscem na dużą szafę 8,02 m2, duża widna kuchnia 7,52 m2 otwarta na przestronny salon z jadalnią 32,73 m2 oraz łazienka 3,48 m2 z oknem. Do części gospodarczej z garażem 18,69 m2 i kotłownią 5,89 m2 prowadzi przejście przez pralnię 2,82 m2.
Na piętrze o łącznej powierzchni użytkowej 52,80 m
2 są 3 przestronne sypialnie 11,52 m2,10,98 m2 13,92 m2, duża łazienka 8,40 m2 z oknem oraz garderoba 2,0 m2.
Konstrukcja obiektu
  • ławy fundamentowe: żelbetowe
  • ściany fundamentowe: żelbetowe wylewane na budowie
  • ściany konstrukcyjne: beton komórkowy odm. 500 w kolorze białym
  • strop nad parterem: monolityczny żelbetowy
  • pokrycie dachu: dachówka ceramiczna Brass Rubin 9 V kolor antracyt
  • orynnowanie: firmy Galeco PCV w kolorze grafitowym,
  • obróbki: z blachy powlekanej w kolorze antracytu;
  • schody wewnętrzne na czas budowy: technologiczne drewniane
  • kominy systemowe
Wykończenie
  • elewacja: ocieplenie styropianem EPS 80 gr 18 cm; tynk silikonowy kolor biały i grafitowy,
  • stolarka okienna: okna PCV pięciokomorowe Aluplast 4000 od wewnątrz białe, z zewnątrz w kolorze grafitowym, okucie Maco, okna trzyszybowe
  • stolarka drzwiowa: drzwi wejściowe do domu stalowe KMT, kolor grafit; drzwi z kotłowni na ogród: stalowe KMT Standard 55 płaskie, kolor grafit
  • brama segmentowa firmy Wiśniewski w kolorze grafitowym z napędem elektrycznym sterowana na pilota
  • rolety okienne elektryczne na parterze i na piętrze w kolorze grafitowym
Zagospodarowanie terenu
  • od frontu murki na skrzynkę gazową i elektryczną
  • wokół budynku opaska żwirowa
  • podjazd i podejście do domu: kostka brukowa szara, antracyt
  • ogrodzenie z paneli w kolorze grafitowym o wysokości 150 cm + podmurówka wys. 20 cm od strony ogrodu
Lokalizacja
Domy są usytuowane w Siemianowicach Śląskich ul. Storczykowej, przy skrzyżowaniu z ul. Krupanka.
Dostęp do pełnej infrastruktury miejskiej, w pobliżu sklepy, szkoły, obiekty sportowe, gastronomiczne, opieki zdrowotnej oraz komunikacja publiczna miejska. Walory lokalizacji doceniane są  przez mieszkańców miasta szczególnie preferowane przez rodziny.

Piękna przyroda trasy rowerowo-spacerowe w okolicy zapewniają rozmaite opcje dla codziennego relaksu.

Jednocześnie dojazd samochodem do Centrum Siemianowic, Czeladzi, Sosnowca, Chorzowa zajmuje zaledwie10 min, do centrum Katowic dojedziemy w 15 min. A w ciągu 12 minut można dotrzeć na zakupy do Galerii Dąbrówka, Auchan, Decathlon, Castoramy czy Ikei oraz M1.
Super lokalizacja do mieszkania, szybki dojazd do DK94, S86, DK 86, S1 oraz autostrad A1 i A4. Świetne połączenie z lotniskiem w Pyrzowicach 30 min.

Jeśli marzysz o odpoczynku po pracy w zacisznej okolicy to jest to oferta dla Ciebie i Twoich najbliższych. Znajdziecie tu azyl, a komfort miejskiego życia
 nadal będzie w zasięgu ręki.

Zapraszamy na prezentację

 

Nota prawna

Opis oferty zawarty na stronie internetowej sporządzany jest na podstawie oględzin nieruchomości oraz informacji uzyskanych od właściciela, może podlegać aktualizacji i nie stanowi oferty określonej w art. 66 i następnych K.C.

Szczegóły oferty

Symbol oferty SCN-DS-2639
Powierzchnia 136,36 m²
Powierzchnia użytkowa 136,36 m²
Powierzchnia działki 365 m²
Liczba pokoi 4
Rodzaj domu bliźniak
Technologia budowlana pustaki ceramiczne
Standard
Liczba pięter w budynku 1
Wymiary działki 14,5x25 m
Garaż w budynku
Stan prawny Własność
Okna nowe PCV
Instalacje nowe
Balkon brak
Liczba tarasów 1
Zagosp. działki częściowo zagospodarowana
Ukształtowanie działki płaska
Kształt działki prostokat
Pokrycie dachu dachówka ceramiczna
Pozwolenie na użytkowanie w trakcie uzyskiwania
Stan budynku do wykończenia
Ogrodzenie działki częściowo ogrodzona
Rok budowy 2025
Gaz jest
Woda jest
Dojazd asfalt
Otoczenie zabudowa jednorodzinna
Ogrzewanie własne gazowe - kocioł 2-funkcyjny
Odległość do komunikacji publicznej [m] 500 m
Odl. do sklepu [m] 1 400 m
Odl. do szkoły [m] 1 700 m
Odl. do przedszkola [m] 850 m
Tarasy taras duży
Drzwi antywłamaniowe tak
Przystosowania dla niepełnosprawnych tak
Prąd jest
Kanalizacja miejska
Klucze tak

Pomieszczenia

Powierzchnia pokoi 69,15 m2
Podłogi pokoi wylewka
Typ kuchni bez zabudowy
Rodzaj kuchni aneks kuchenny - połączony z jadalnią
Powierzchnia kuchni 7,52 m2
Podłoga kuchni wylewka
Typ łazienki razem z wc, z oknem
Liczba łazienek 2
Powierzchnia łazienki 8,40 m2
Glazura łazienki bez glazury
Podłoga łazienki wylewka
Liczba WC 1
Powierzchnia WC 3,48 m2
Glazura WC bez glazury
Liczba przedpokoi 2
Powierzchnia przedpokoi 14,05 m2
Podłoga przedpokoi płyta

Lokalizacja

Kalkulator kredytowy

PLN
%
Wysokość raty

Kalkulator kosztów

PLN
PLN
PLN
PLN
PLN
PLN
%
PLN
Podatek od czynności cywilno-prawnych
Taksa notarialna (opłata notarialna)
VAT od taksy notarialnej (opłaty notarialnej)
Wniosek do WKW
VAT od wniosku do WKW
Prowizja agencji nieruchomości
VAT od prowizji agencji nieruchomości
Wypisy aktu notarialnego - około
RAZEM (cena + opłaty)

Podobne oferty

oferta specjalna
dom na sprzedaż - Siemianowice Śląskie, Przełajka, tulipanowa

dom na sprzedaż

Siemianowice Śląskie, Przełajka, tulipanowa
4 pokoje 136,36 m2 5 639,48 zł/m2

Napisz do nas

Proszę wypełnić to pole
Proszę wypełnić to pole
Proszę wypełnić to pole
Proszę wypełnić to pole
Trwa wysyłanie...

Ta strona wykorzystuje pliki cookies w celach statystycznych oraz w celu dostosowania naszych serwisów do indywidualnych potrzeb klientów. Zmiany ustawień dotyczących plików cookie można dokonać w dowolnej chwili modyfikując ustawienia przeglądarki. Korzystanie z tej strony bez zmian ustawień dotyczących cookies oznacza, że będą one zapisane w pamięci urządzenia.

rozumiem