Opis nieruchomości
Oferujemy na wynajem
atrakcyjny lokal użytkowy w
Katowicach ul. Mikołowska 117A o powierzchni
163,93 m² w doskonałej lokalizacji w pobliżu ruchliwego skrzyżowania głównych arterii komunikacyjnych miasta Mikołowskiej, Ligockiej i Gallusa gwarantują duży ruch pieszy
oraz idealną ekspozycję dla biznesu.
Rewelacyjnie wyeksponowany. Świetny punk do prowadzenia każdej działalności.
W bezpośrednim sąsiedztwie inne lokale usługowe. Bardzo duże osiedla mieszkaniowe.
Potencjał miejsca wraz z bardzo dobrym dostępem do komunikacji miejskiej czynią ofertę miejscem, które daje znakomite możliwości. Dodatkowo na sąsiednich działkach planowana jest realizacja kolejnych inwestycji mieszkaniowych.
BUDYNEK:
Lokal znajduje się w parterze budynku usługowo-mieszkalnego w dzielnicy z bezpośrednim wejściem od ulicy. Obiekt położony jest w dynamicznie rozwijającej się części dzielnicy
Brynów, w bezpośrednim sąsiedztwie śródmieścia Katowic.
Prestiżowe sąsiedztwo Kopalni Wujek, dzielnic willowych oraz planowanej nowej mieszkaniowej inwestycji deweloperskiej przy ul. Gallusa.
Budynek
po generalnym remoncie, ocieplony, nowa stolarka okienno-drzwiowa.
LOKAL
Lokal posiada witryny wychodzące na ulicę, co zapewnia
doskonałą ekspozycję i widoczność prowadzonej działalności. Dojazd zaopatrzenia bezpośrednio
dostępny od zaplecza.
Wynajmujący dopuszcza
możliwość zmian adaptacyjnych.
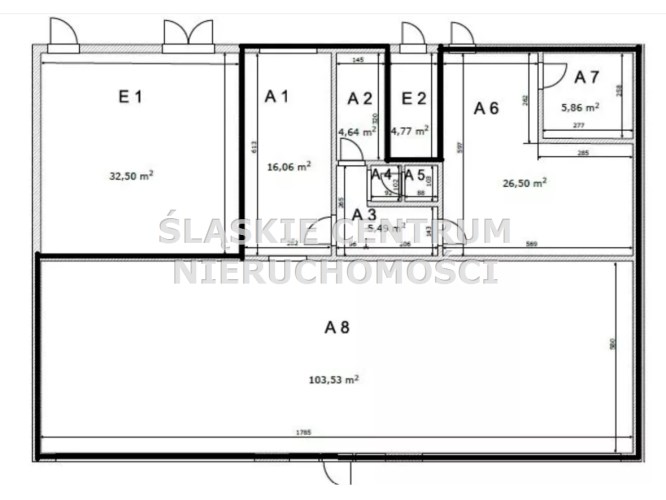
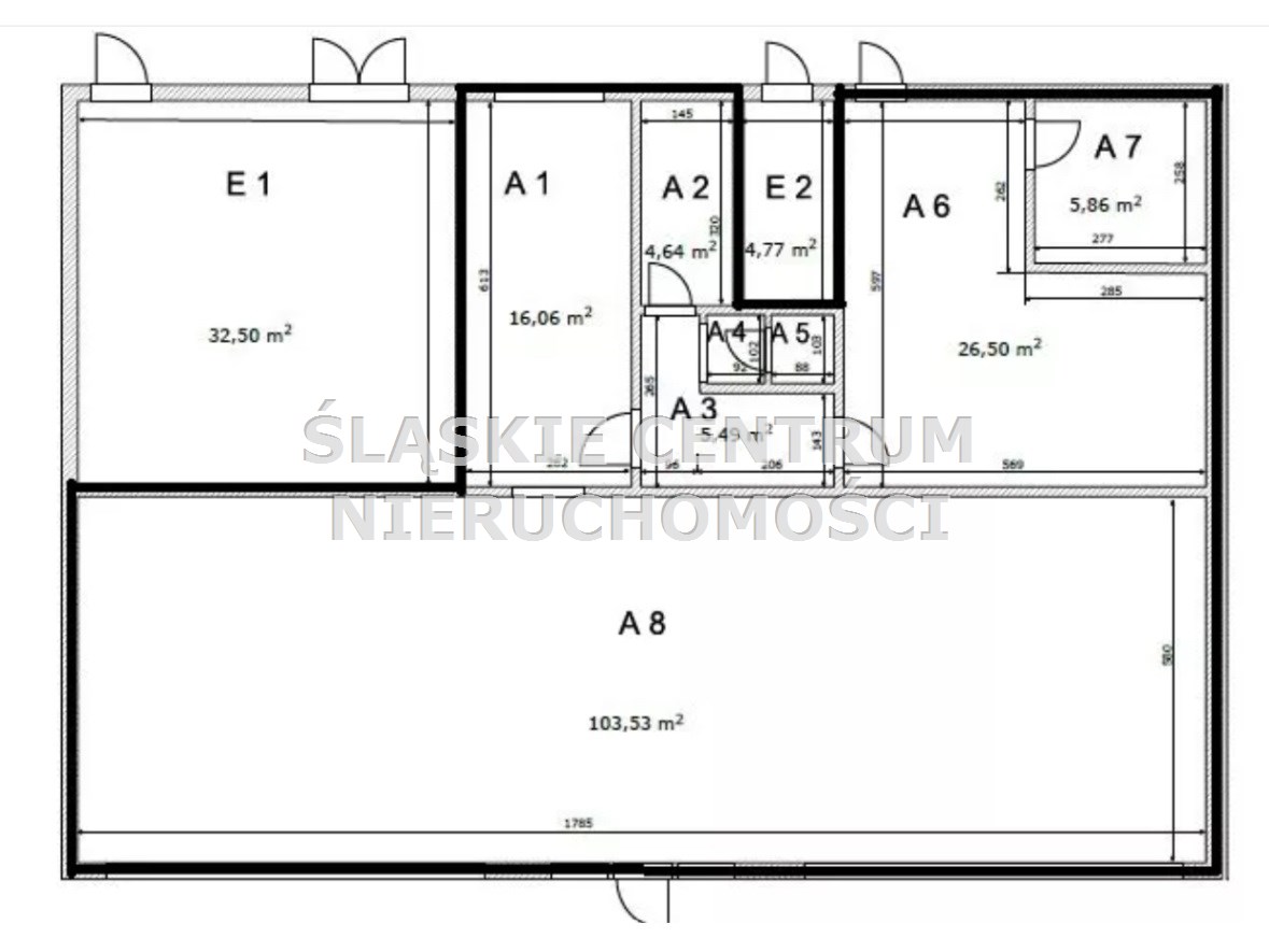
Układ pomieszczeń:
- Sala główna:103,53 m²
- Zaplecze: toaleta, pomieszczenie socjalne, magazyny, pomieszczenia techniczne o łącznej powierzchni 60,04 m²
Atuty lokalizacji
- Bardzo duży ruch pieszy i samochodowy,
- Doskonała ekspozycja witryn na główną ulicę,
- Łatwy dostęp do komunikacji miejskiej (tramwaje, autobusy),
- W pobliżu biura, punkty usługowe, gastronomia i gęsta zabudowa mieszkaniowa.
- Prestiżowe sąsiedztwo
- Koncentracja potencjalnych klientów zapewnia ogromny potencjał dla rozwoju wszelkiego rodzaju usług.
Przeznaczenie:
Idealny pod handel, usługi, biura, placówki edukacyjne lub działalność medyczną.
Opłaty
Czynsz najmu
6.560 zł netto + Vat + opłaty do Spółdzielni + prąd
Uwaga!
Dysponujemy także ofertami o podobnych parametrach w innych lokalizacjach Katowic.
W sprawie szczegółów prosimy o kontakt z biurem SCN Nieruchomości
Zapraszamy na prezentację
Nota prawna
Opis oferty zawarty na stronie internetowej sporządzany jest na podstawie oględzin nieruchomości oraz informacji uzyskanych od właściciela, może podlegać aktualizacji i nie stanowi oferty określonej w art. 66 i następnych K.C.